Giới thiệu Phụ kiện cửa trượt xoay F-Park72 60B cho 1 cặp cửa cao 2200-2700mm Hafele 408.45.013
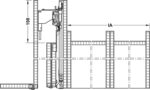
Phụ kiện cửa trượt xoay F-Park72 60B cho 1 cặp cửa cao 2200–2700mm Hafele 408.45.013 là giải pháp hoàn hảo cho hệ thống cửa gỗ hiện đại, mang đến sự tiện lợi và thẩm mỹ tối ưu. Sản phẩm được thiết kế dành riêng cho 2 cánh cửa gỗ trượt xoay, lắp đặt dễ dàng, phù hợp cho cửa có trọng lượng tối đa 60 kg và chiều cao cửa lên đến 2.700 mm. Với kiểu lắp Infront/Vorfront (lọt lòng/trùm ngoài), bộ phụ kiện áp dụng hiệu quả cho cửa có chiều cao từ 2.200 – 2.700 mm và yêu cầu độ sâu tủ bên trong 905 mm.
Bộ sản phẩm gồm đầy đủ phụ kiện (không bao gồm ray trượt), hỗ trợ 2 cánh cửa với độ dày từ 18 – 30 mm, chiều rộng cửa tùy theo thiết kế. Hệ thống con lăn bằng nhựa chất lượng cao kết hợp cụm chạy 3 con lăn dẫn hướng bằng vòng bi, đảm bảo chuyển động êm ái, ổn định và bền bỉ trong quá trình sử dụng. Ngoài ra, sản phẩm còn có thể lắp đặt linh hoạt cho cả cửa mở bên trái và bên phải, mang đến sự tiện nghi và phù hợp với nhiều không gian nội thất khác nhau.
Các đặc điểm của Phụ kiện cửa trượt xoay F-Park72 60B cho 1 cặp cửa cao 2200-2700mm Hafele 408.45.013
- Dành cho hệ 2 cánh cửa gỗ trượt xoay, lắp đặt cực kỳ dễ dàng, phù hợp cho cửa có trọng lượng tối đa 60 kg, chiều cao cửa lên đến 2.700 mm.
- Kiểu lắp Infront/Vorfront (Lọt lòng/Trùm ngoài), áp dụng cho chiều cao cửa 2.200 – 2.700 mm, độ sâu tủ bên trong 905 mm.
- Vật liệu cửa: Gỗ
- Bộ sản phẩm: Bộ phụ kiện (không bao gồm ray trượt)
- Số cánh cửa mỗi bộ: 2 cánh
- Chiều rộng cửa: theo thiết kế
- Trọng lượng cửa: ≤ 60 kg
- Độ dày cửa: 18 – 30 mm
- Vật liệu/hoàn thiện: Con lăn bằng nhựa
- Phiên bản cụm chạy: 3 con lăn
- Cụm chạy được dẫn hướng bởi: Vòng bi
- Lắp đặt: Dùng cho cả cửa mở trái và phải
- Bảo hành 12 tháng































Bích Hạnh Đã mua tại flexhouse.vn
Màu sắc đúng như hình.