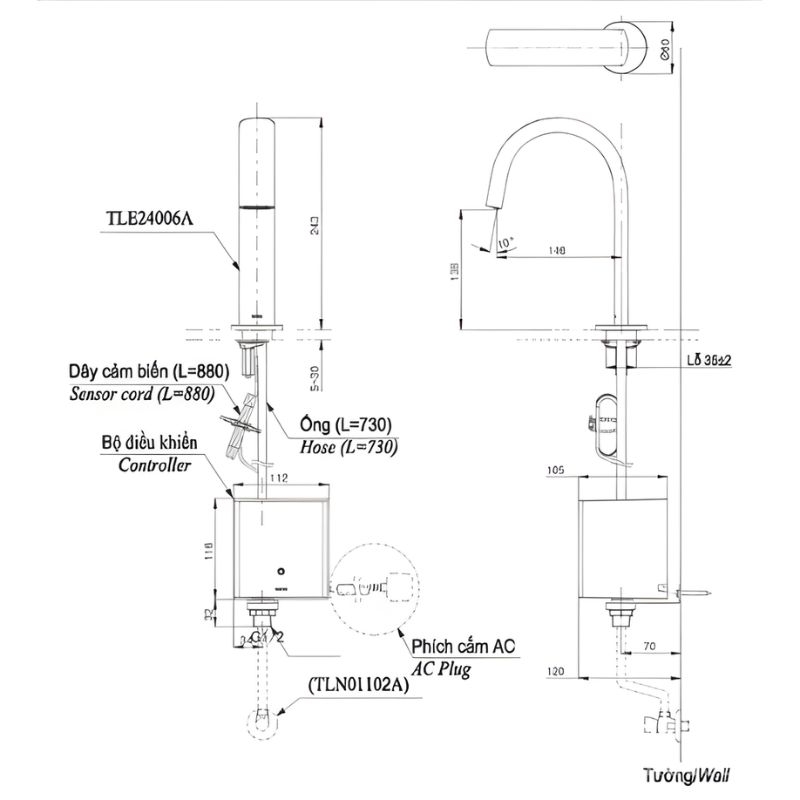
Giới thiệu Vòi chậu lavabo cổ cao cảm ứng TOTO TLE24006A
Vòi chậu lavabo TLE24006V là mẫu vòi cảm ứng cổ cao dành cho lavabo đặt bàn, nổi bật với dáng cổ cao tạo không gian thoáng để rửa tay thoải mái. Thiết kế bằng đồng mạ Niken–Crom cho vẻ ngoài sáng bóng, bền bỉ và chống gỉ tối ưu. Vòi hoạt động hoàn toàn không chạm, cảm biến được đặt ngay phía trước tâm xả giúp phát hiện người dùng nhanh và chính xác.
Với công nghệ SELF POWER cho phép vòi tự tái tạo điện từ dòng chảy, trong khi ECO CAP bơm không khí vào nước tạo tia nước mạnh nhưng tiết kiệm. Ngoài ra, dòng chảy SOFT FLOW êm nhẹ, không văng nước, mang đến sự tiện nghi cho người tiêu dùng.
Các ưu điểm Vòi chậu lavabo cổ cao cảm ứng TOTO TLE24006A
- Giúp tối ưu hóa không gian và dễ dàng kết hợp với mọi phong cách thiết kế
- Công nghệ SELF POWER: nguồn điện tự tạo từ dòng chảy, tiết kiệm điện
- Dòng chảy SOFT FLOW êm nhẹ, không văng nước.
- Dáng cổ cao hiện đại, tinh tế
- Công nghệ ECO CAP: tạo bọt khí mạnh mẽ, tiết kiệm nước
- Cảm biến được đặt bên dưới đầu vòi để phát hiện chính xác hơn
- Lưu lượng nước: 2L/phút
- Chất liệu đồng mạ ni/cr
- Vật liệu đồng mạ Ni/Cr có độ bền cao, chắc chắn
- Màu sắc/lớp hoàn thiện: mạ Crom
- Áp lực nước: 0.05 ~ 0.75 MPa
- Kích thước: 243mm
- Bảo hành 2 năm từ nhà sản xuất
- <<Lưu ý: Sản phẩm chưa bao gồm bộ điều khiển, van dừng – dây cấp và ống thải chữ P
Hình ảnh Vòi chậu lavabo cổ cao cảm ứng TOTO TLE24006A

Hình ảnh thực tế của sản phẩm






















Chưa có đánh giá nào.