Giới thiệu Suốt treo quần áo nâng hạ cơ Garis GW34GM
Trong không gian tủ quần áo ngày nay, sự tiện lợi và thẩm mỹ luôn được đặt lên hàng đầu. Suốt nâng hạ treo quần áo cơ Garis GW34GM chính là lựa chọn lý tưởng, giúp bạn tối ưu diện tích, dễ dàng treo và lấy quần áo dù ở độ cao nào. Sản phẩm được trang bị thêm giảm chấn giúp cho việc vận hành trở nên êm ái.
Suốt treo là sự lựa chọn tuyệt vời cho các tủ quần áo cao cấp và thường treo cao, tạo nên sự tiện ích và thẩm mỹ cho tủ quần áo. Đặc biệt sử dụng sản phẩm này phù hợp với trẻ em và người già khi lấy và treo quần áo.
Các đặc điểm của Suốt treo quần áo nâng hạ cơ Garis GW34GM
- Chế tác bằng vật liệu hợp kim nhôm chắc chắn, kháng gỉ
- Kéo xuống và đẩy lên với giảm chấn kép, hoạt động trơn tru và ổn định
- Tận dụng không gian hiệu quả và hợp lý
- Giúp quần áo không bị rơi, di chuyển lên và xuống trơn tru, ổn định
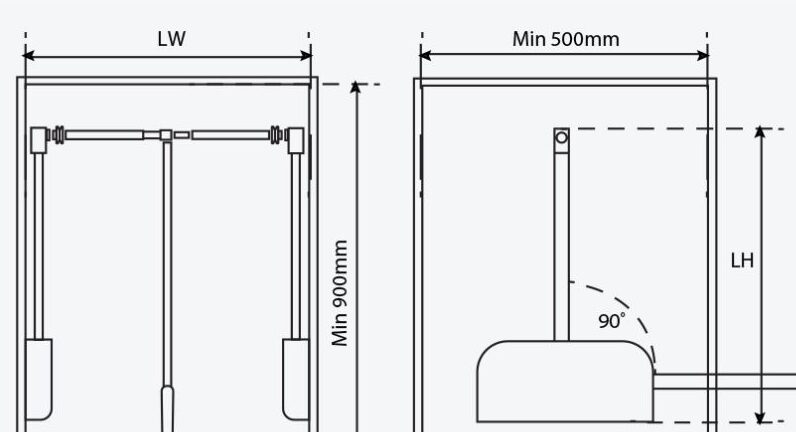
- Chiều rộng lọt lòng (LW): ≥ 960-1500
- Kích thước khoang tủ tiêu chuẩn: 966-1536
- Bảo hành 2 năm từ nhà sản xuất
Hình ảnh Suốt treo quần áo nâng hạ cơ Garis GW34GM




























Tuấn Kiệt Đã mua tại flexhouse.vn
Hàng đẹp, nhận được đúng như hình.